Architecture
T-TOWER, Business centre in Kyiv
Kyiv, Ukraine
Location
2022
Year
Concept
Status
About project
ASPECTS OF PROJECT FORMATION
PROJECT TEAM
T-TOWER
About project

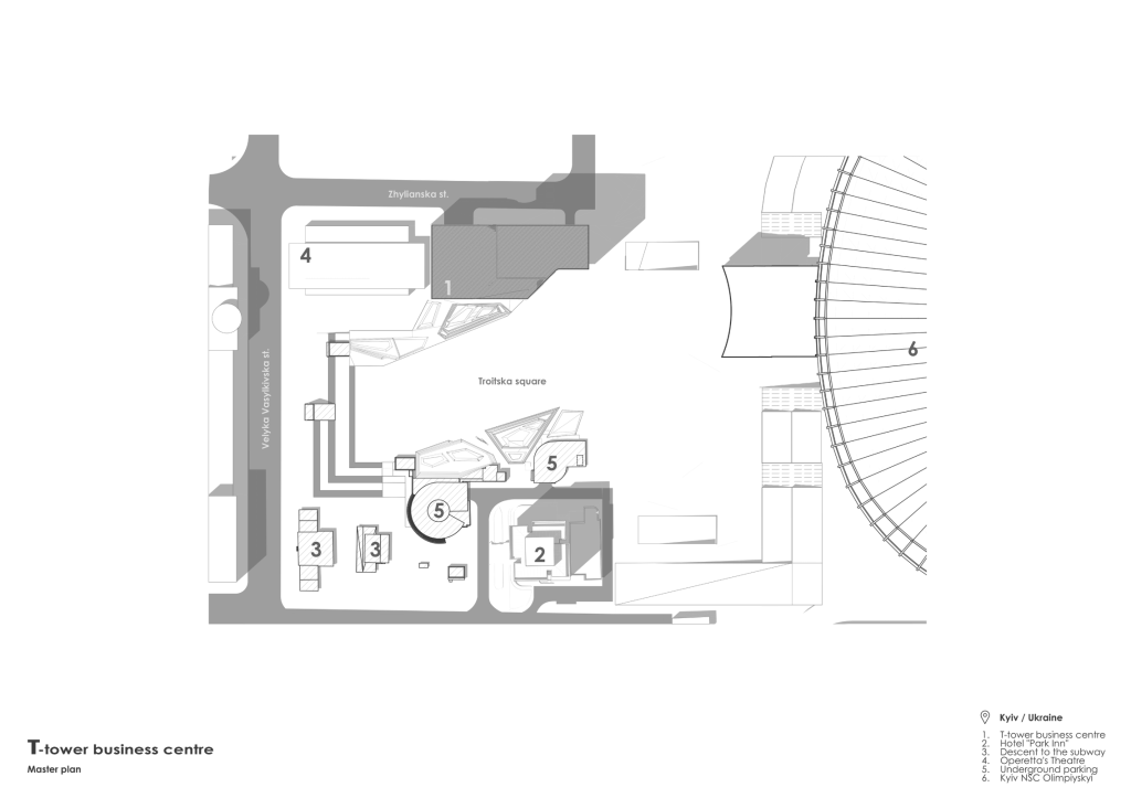
The project of the business centre, the reconstruction of Troitskaya Square, and the restyling of the facade of the Park-inn hotel is a complex solution. Our team has been working on it for over a year.

We developed several design solutions for the architectural ensemble of the square.

The main option was a complex using the classic proportions of a conventional facade and a parametric structure inside. The building symbolizes the split between the past and the future.

In landscaping the square, we used the principle of creating a cosy space. Thanks to small architectural forms, we hid engineering shafts, ramps, and stairs that deface the general view of the square. At the same time, we retained a 60-meter area for evacuating people in an emergency from the stadium.

The restyling of the Park Inn hotel was a vital component in forming a unified ensemble. Beyond merely updating its appearance, we visually synchronized it with the new tower through a shared color palette and façade rhythm. This approach eliminated visual chaos, integrating buildings from different eras into a cohesive architectural composition that frames the square.

The project’s final accent is its evening illumination design. Architectural lighting highlights the parametric geometry of the “rift” and emphasizes the entrance groups, transforming the complex into a distinct visual landmark. The use of advanced glazing ensures panoramic views of the stadium and Kyiv’s city center, reaffirming the building’s status as a Class-A business center.

Developer:
Smart Holding
Site plot:
5,98 ha
Number of storeys:
22 floors
Total area:
40 000 sq m
Diagrams
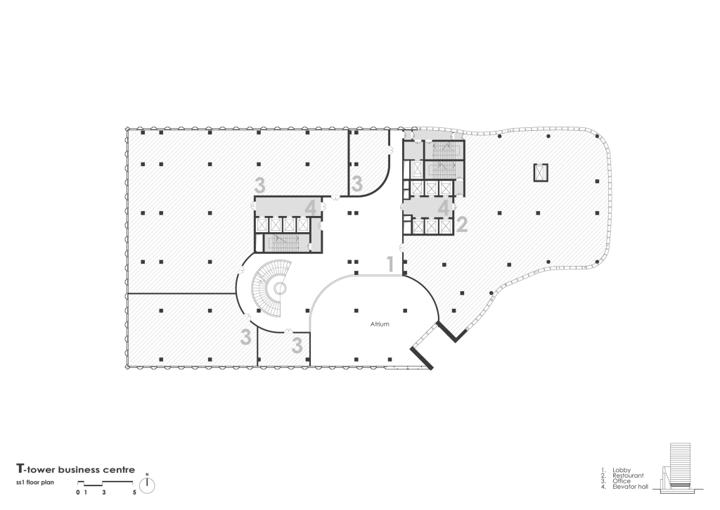
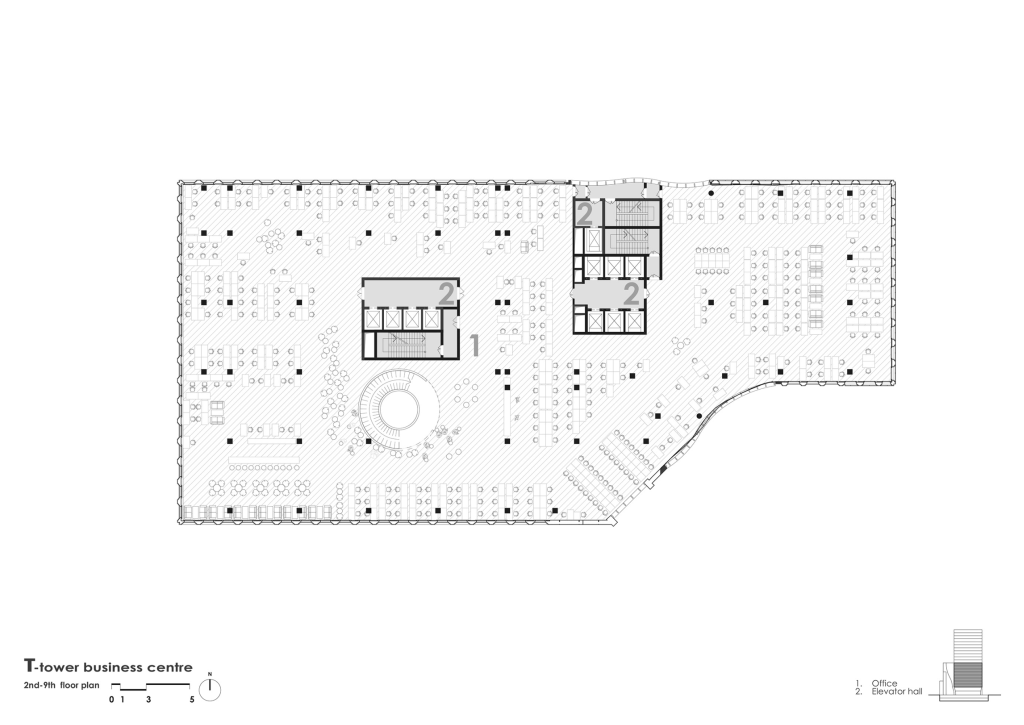
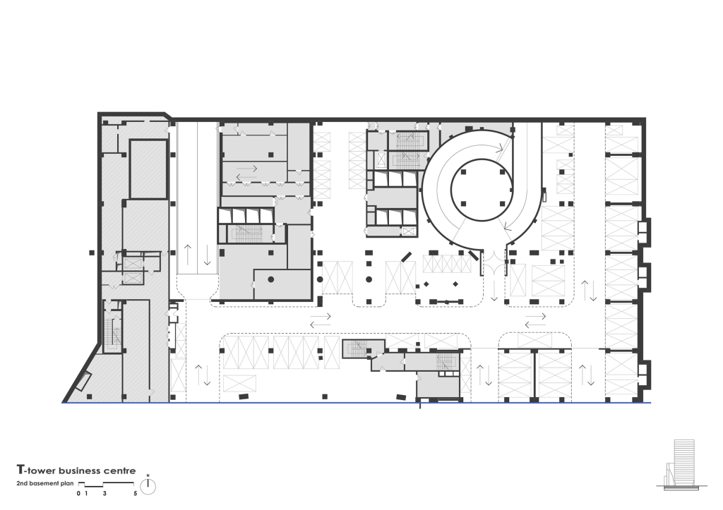
Floor plan:

T-TOWER, Business centre in Kyiv
GENERAL DESIGN TEAM
Project team:

 

 

Architects:
5