Interior
Interior Design of Lobby for FJORD Residential Complex
Kyiv
Location
2019
Year
In the process
Status
About project
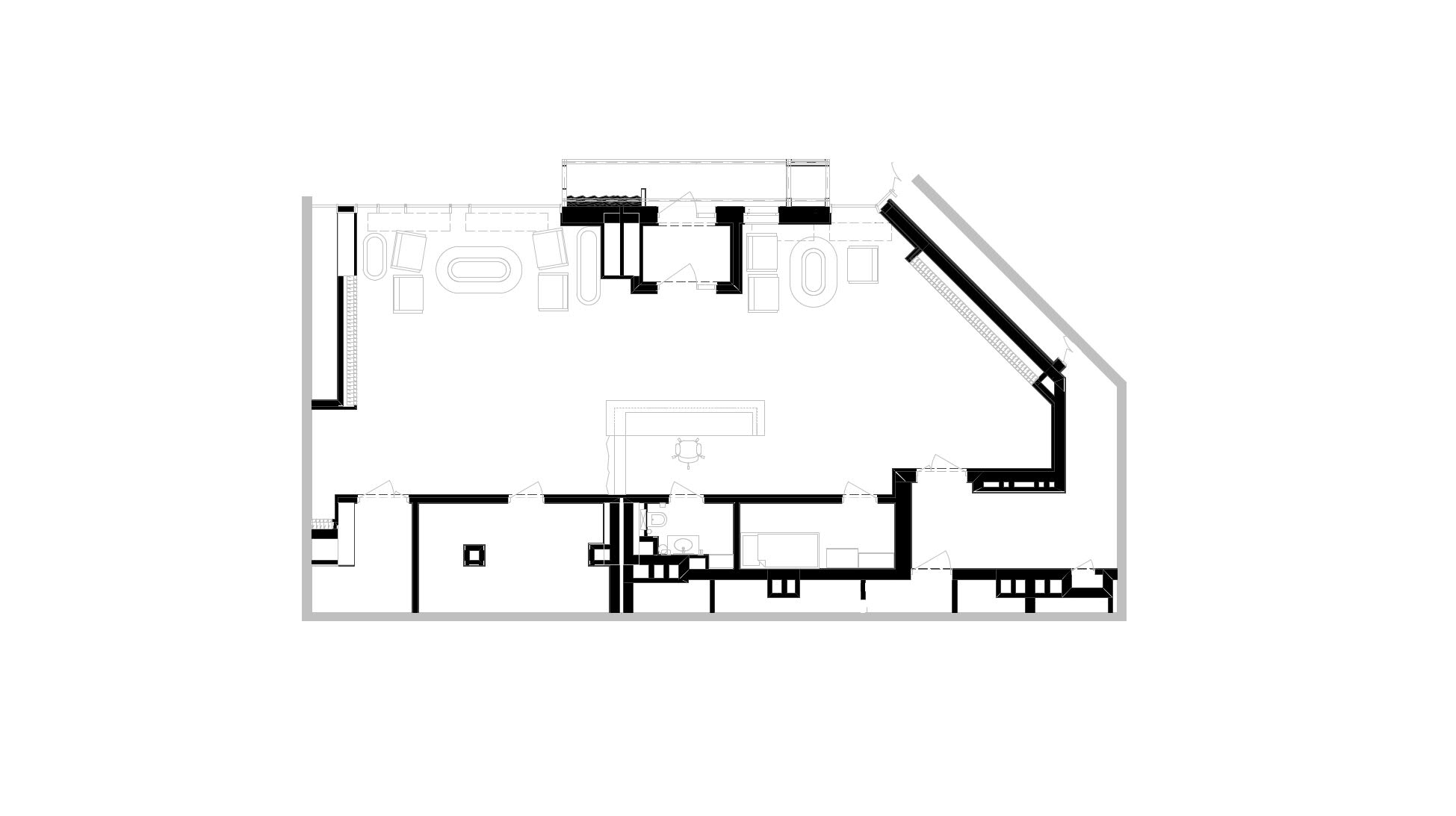
INTERIOR PLAN
OUR TEAM
Interior Design of Lobby for FJORD Residential Complex
About project

The designers were guided not only by their knowledge of architecture working on a project. The place where a person, especially a resident, spends his time plays a very important role in his mood.

Special attention was paid to the colors and materials in the interior.

White is the main color of the one-story entrance group. Unique patterned shapes from monolithic wooden and metal structures allowed designers to make a very interesting thing: play with light and shapes. High-quality ceramic tiles and stained glass systems fill the room with light. Bright interior items also play an essential role. They mix the monotony of the walls with other colors and also have a beneficial effect on guests who are in the room. Scientists proved that, for example, green color relaxes people. It’s physically optimal for the body, and the use of tree harmonize it.

Developer:
ENSO
Floor area:
900 m²
Room area:
200 m²
Ceiling height:
3,6 m

Interior Design of Lobby for FJORD Residential Complex
GENERAL DESIGN TEAM
Our team:

 

 

Interior architect:
2
Visualization architect:
1