Interior
Interior Design of DESIGN ARENA
Bandera avenue 17, Kyiv
Location
2019
Year
Finished
Status
About project
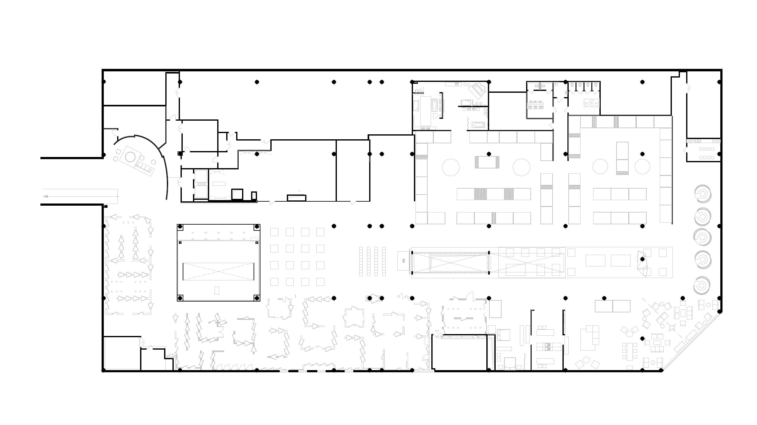
INTERIOR PLAN
OUR TEAM
Interior Design of DESIGN ARENA
About project
The Design Arena is a unique space created by AIMM, designed specifically for designers, architects, and decorators. Profile seminars, lectures, and conferences are held here, but first of all, it’s one of the finest exhibition venues for exclusive materials.
Developer:
EPICENTER
Floor area:
12 000 m²
Room area:
4 000 m²
Ceiling height:
5 m
Interior Design of DESIGN ARENA
GENERAL DESIGN TEAM
Our team:
Interior architect:
3
Visualization architect:
1
Projects
Our next projects