Architecture
The city council in Haapsalu
Haapsalu, Estonia
Location
2023
Year
Concept
Status
About project
ASPECTS OF PROJECT FORMATION
PROJECT TEAM
The city council in Haapsalu
About project

The building is located within the Museum Zone of Haapsalu, on one of the main central squares, Lossi plats. The project site borders with the police building, which has a dominant attic floor, the height of which is one and a half times higher than the usual floor height. The proposed building has two floors with a dynamic “floating” third floor, which reproduces a historical image, correlating with the building located across Vyike-Mere Street. The designed building curves and “floats” along Vyike-Mere Street and leads to the sea boulevard to the north.
When designing the architectural volume of the building, the materials of the surrounding buildings were adhered to, mainly stone and wood. These materials are reflected in the interior, architecture, and landscape design, creating a harmonious environment around the city council building.

Developer:
Investor
Site plot:
0,28 ha
Number of storeys:
3 floors
Building area:
1 620 sq m
Diagrams
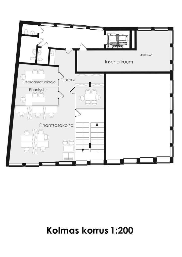
Floor plan:

The city council in Haapsalu
GENERAL DESIGN TEAM
Project team:

 

 

Architects:
2
Project manager:
1
Architectural Visualizer:
1