
ua
2017-12-12
Компанія AIMM відгукнулася на звернення SBID Ukraine, Міністерства регіонального розвитку, будівництва та житлово-комунального господарства і Посольства Великої Британії в Україні, надавши унікальну можливість для студентів розробити простір загальноосвітньої школи в Броварах.
Аналогів у проєктуванні та зведенні такої школи за час незалежності України немає, адже в навчальному комплексі від АІММ-ГРУП зможуть навчатися 2340 учнів, що робить її безпрецедентно місткою.
Школа #НОП (Новий освітній простір) являє собою сучасний навчальний заклад, в якому враховані вимоги до інклюзивної освіти, безбар’єрності, екологічно чистих матеріалів, а архітектура формує по-справжньому нову філософію навчання дітей. Для цього фахівці AIMM-GROUP детально вивчили іноземний досвід проєктування навчальних закладів.
Особливу увагу приділено енергоефективності: комбінована котельня, вентиляція, а також подача та аерація води. За допомогою системи BMS (Building management system), яка керує всіма технологічними процесами, можна ефективніше використовувати ресурси. Для освітлення інтер’єрів та території будуть використовуватися світлодіодні світильники, які відповідають найвищим вимогам і водночас мають кращі показники.
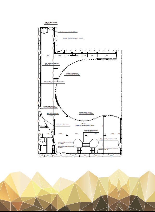
Зони рекреації передбачені в об’ємних холах, де можна проводити різні активності, ігрові уроки, творчі виставки, ярмарки. Саме один з таких величезних холів і представлений на конкурсі Get me 2 the Top Ukraine в розділі Educational Design.
Ми впевнені, що саме молодим талановитим архітекторам і дизайнерам під силу створити сучасну зону рекреації для школярів. По суті, у конкурсантів є можливість створити школу своєї мрії.
Більш детально з умовами конкурсу та вимогам до проєктів ви можете ознайомитися на офіційних ресурсах конкурсу:
http://www.sbid.org/education/student-competition-ukraine/
https://www.facebook.com/sbid.ukraine/
З нетерпінням чекаємо результатів конкурсу, адже крім призів у студентів буде можливість пройти стажування в найкращій проєктній компанії — АІММ-ГРУП.


