Архітектура
Інноваційний центр судин та серця ММ Добробут
Україна, Київ
Місцезнаходження
2021
Рік
Збудовано
Статус
Про проєкт
СХЕМА БУДІВЛІ
АСПЕКТИ ФОРМОУТВОРЕННЯ ПРОЄКТУ
КОМАНДА ПРОЄКТУ
Схеми проєкту
Інноваційний центр судин та серця ММ Добробут
Про проєкт

Влітку 2021 року відкрив свої двері Інноваційни центр хірургії серця та судин «Добробут».

Ми пишаємось цим проектом та його реалізацією. Кожна деталь запроектована з особливою увагою до технологічних вимог приміщень та обладнання. Усі інженерні мережі, архітектурні та інтер’єрні рішення в процесі проектування були зібрані у єдину ВIM-модель, в котрій були ув’язані всі комунікації, отвори та фурнітура.

Ця лікарня – третій корпус лікарні ММ Добробут на Ідзіковських. З першим та другим корпусами з’єднує надземний критий перехід.
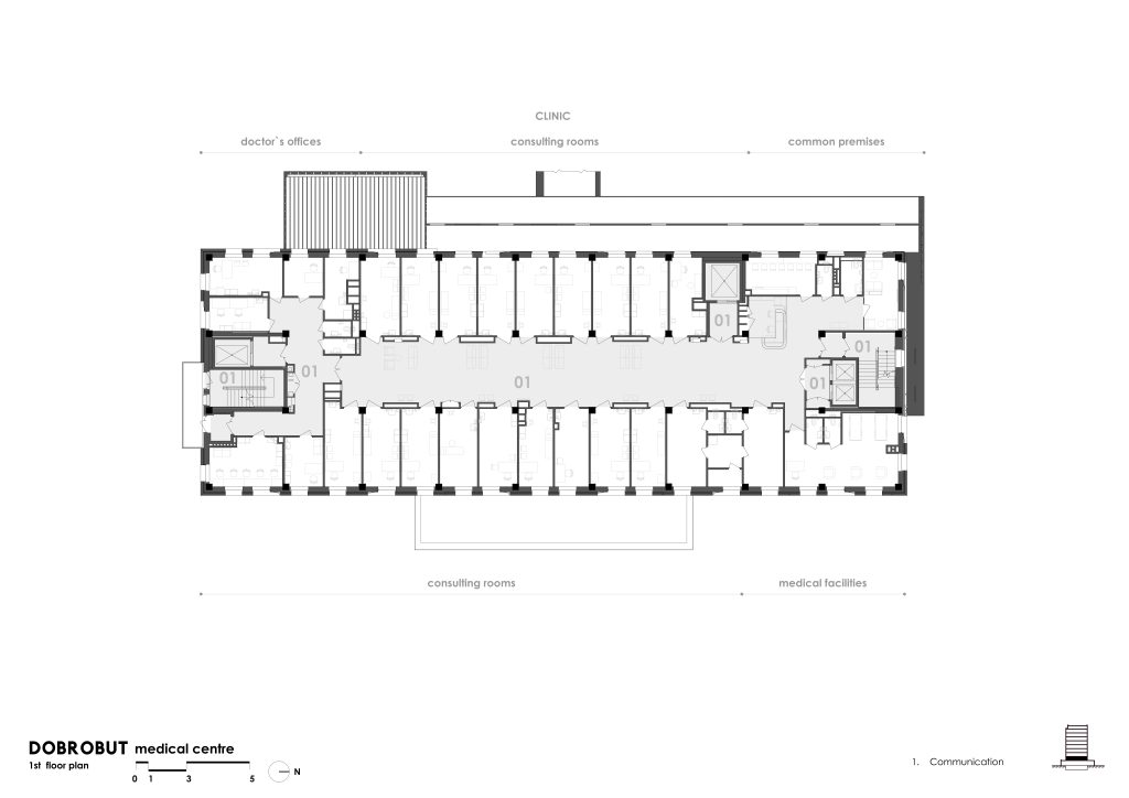
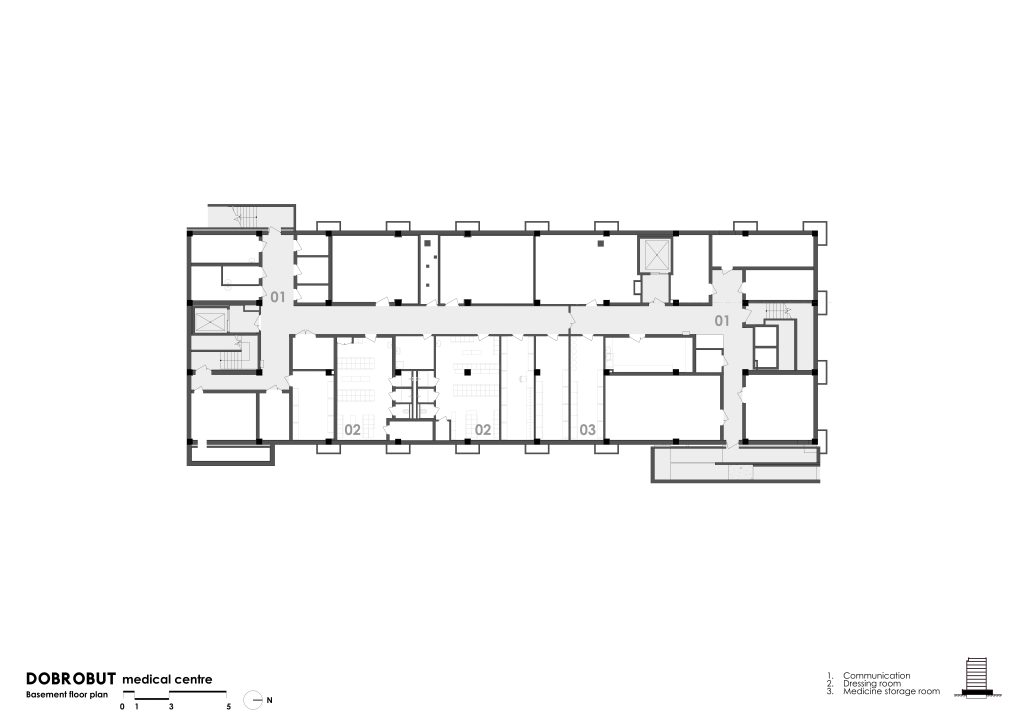
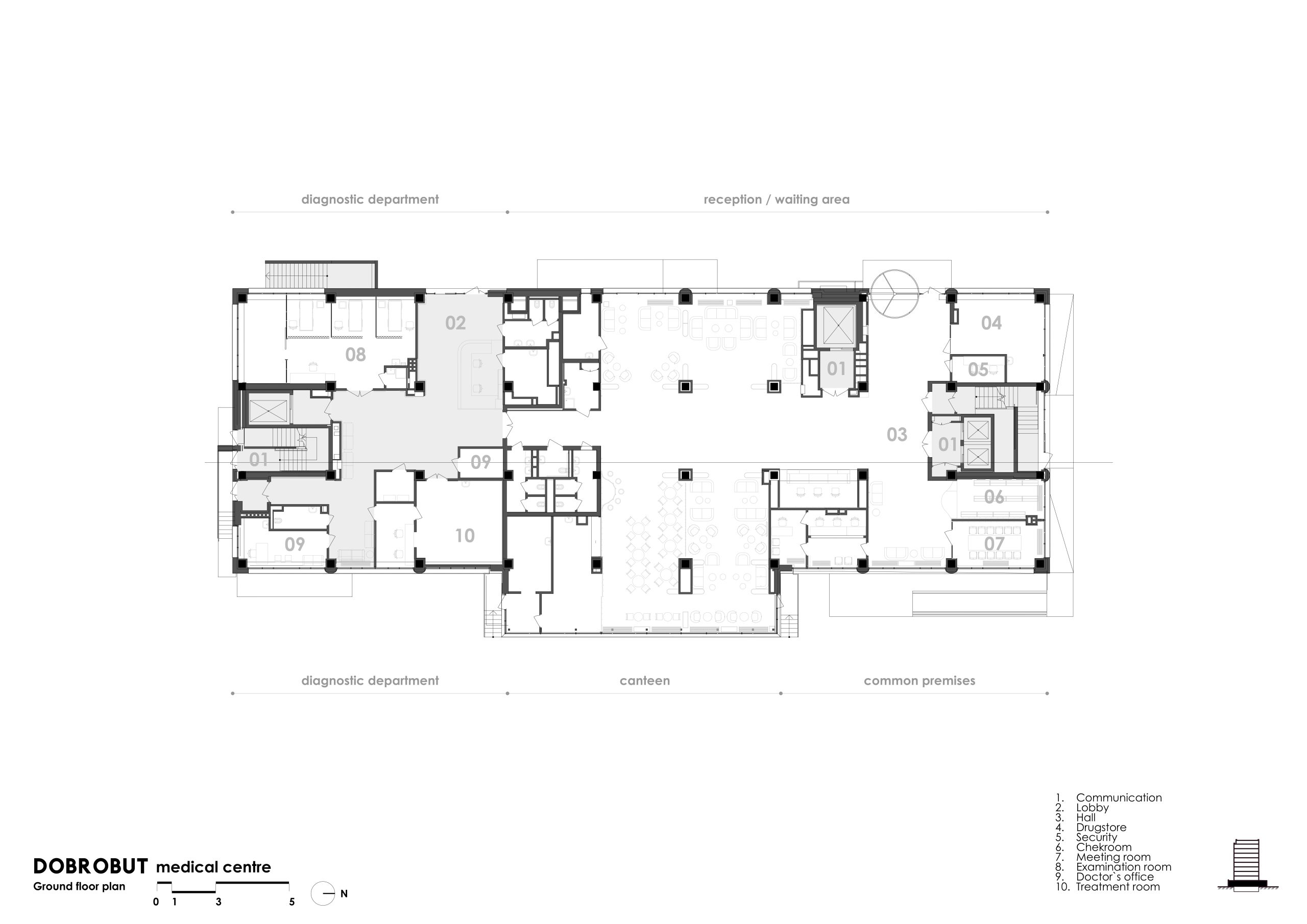
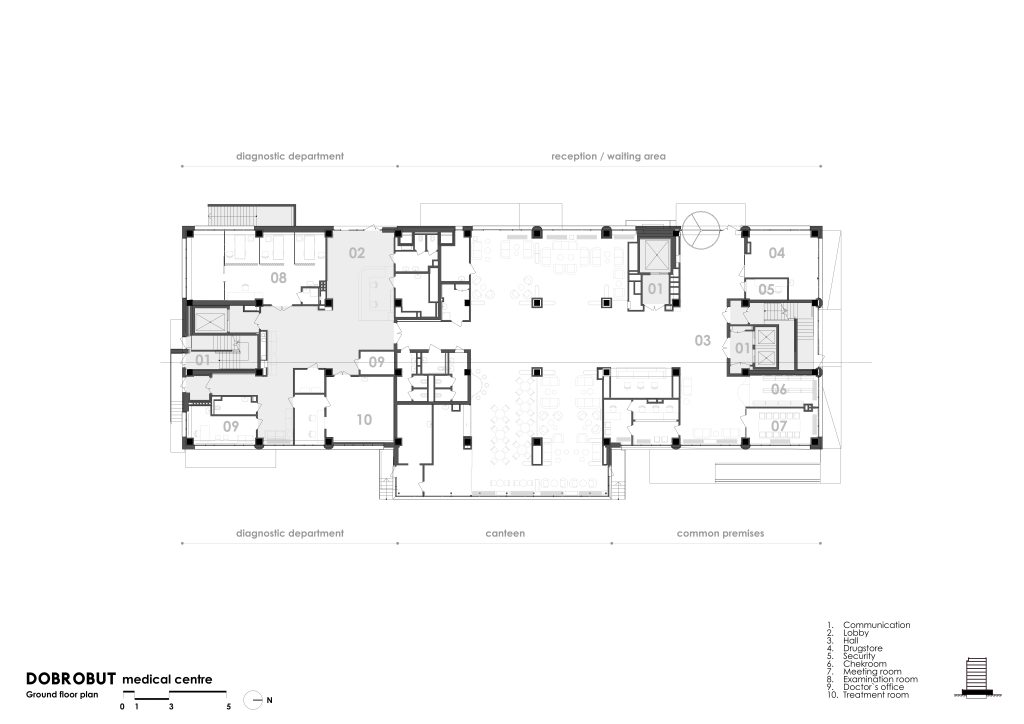
На першому поверсі розташоване приймальне відділення з приміщеннями для екстреної діагностики, КТ, в тому числі повністю закритий від вітру та опадів бокс для машини швидкої допомоги.

Під час реконструкції будівлі були демонтовані усі конструкції, окрім колон, балок та ригелів. Рівень підлоги першого поверху був понижений на 1 метр вниз за рахунок підвального поверху, щоб збільшити висоту лоббі та зробити вхід у лікарню та приймальне відділення безбар’єрним.
Лікарня запроектована по принципу п’ятизіркового готелю. Про лікарню нагадує лише навігація. Лоббі з величезною лаунж-зоною, де можна очікувати комфортно на прийом, пацієнт зустрітись з відвідувачами, лікар поспілкуватись з пацієнтом. Також тут розмістилось кафе, кімната для переговорів та аптека – це все на 500 м². Три зони ліфтів – для відвідувачів, персоналу та медичний.
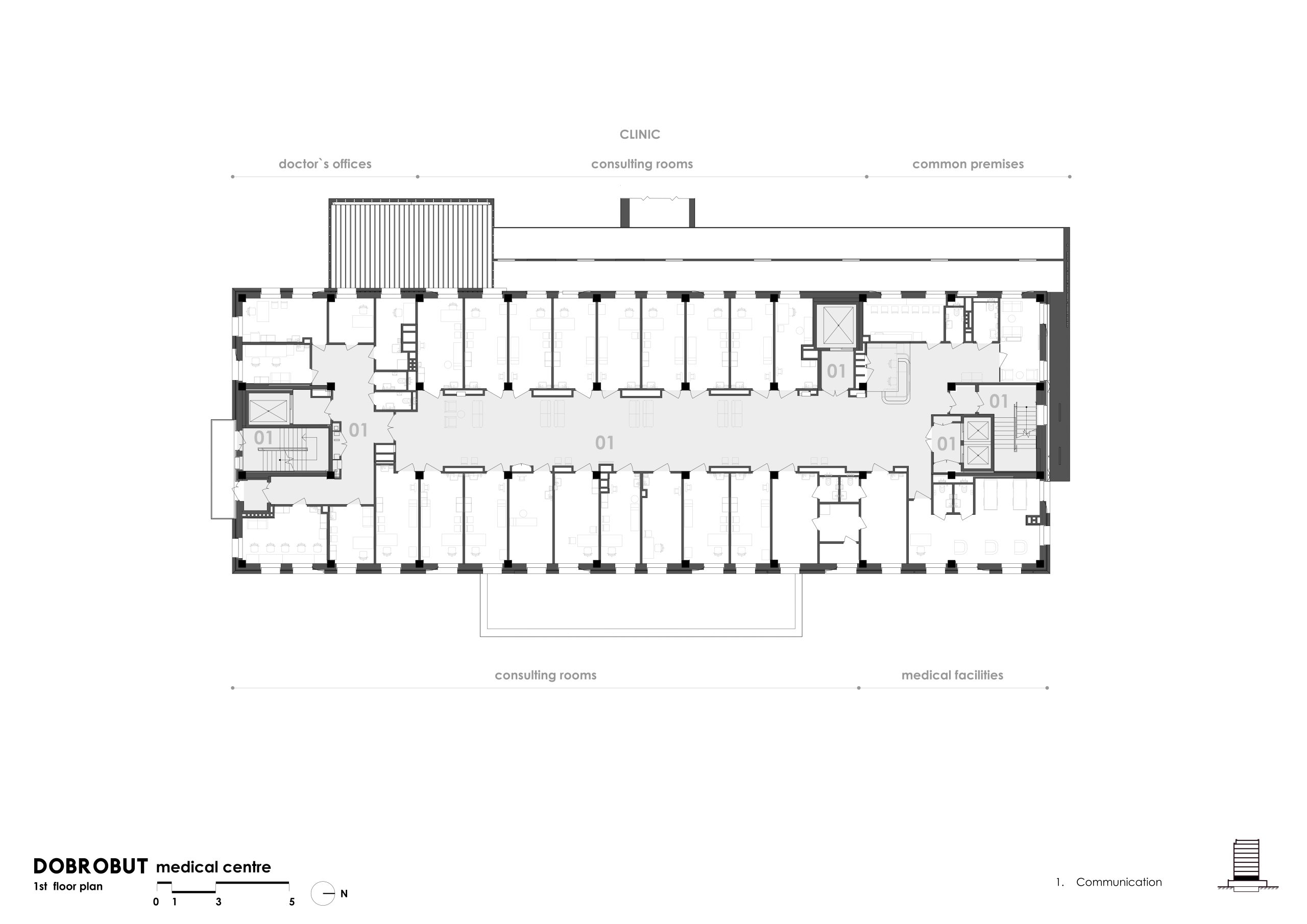
На другому поверсі розташувалась поліклініка. Ні інших поверхах – онкологічне відділення судинної хірургії, неврологічне відділення, нейрохірургічне відділення, кардіохірургічне відділення, ендоваскулярна хірургія, інтенсивна терапія, кардіохірургічна реанімація, операційний блок, адміністрація та конференц-зала.

Девелопер:
ММ Добробут
Площа ділянки:
0,6 га
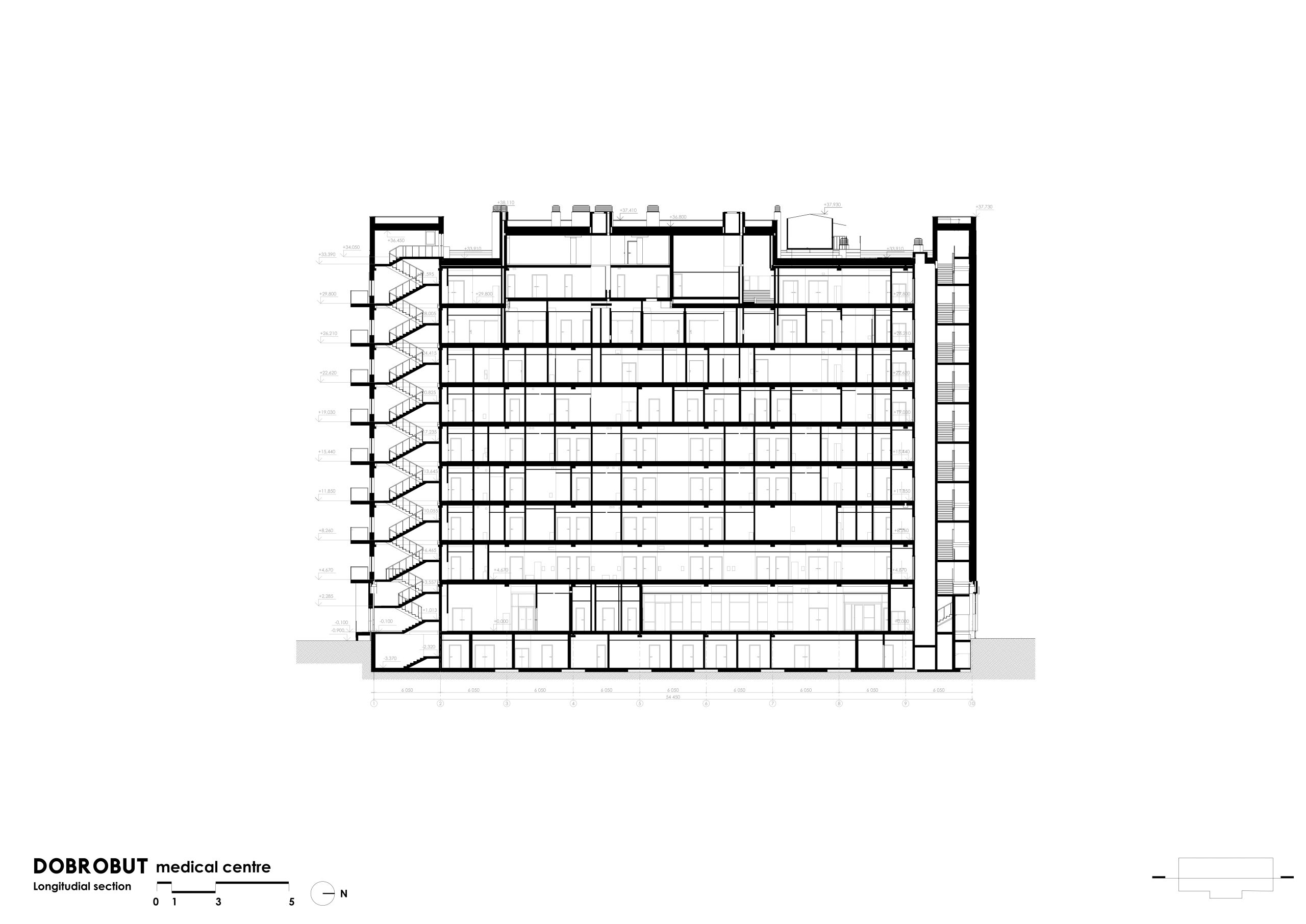
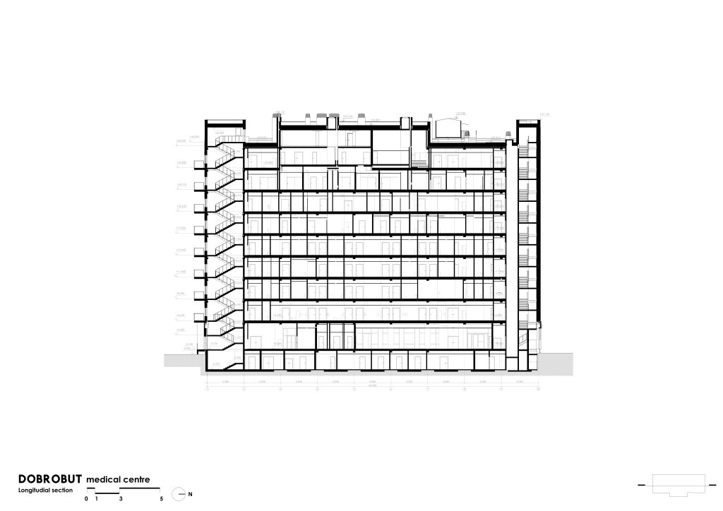
Поверховість:
10 поверхів
Загальна площа:
3 650 м²

Інноваційний центр судин та серця ММ Добробут
Схеми
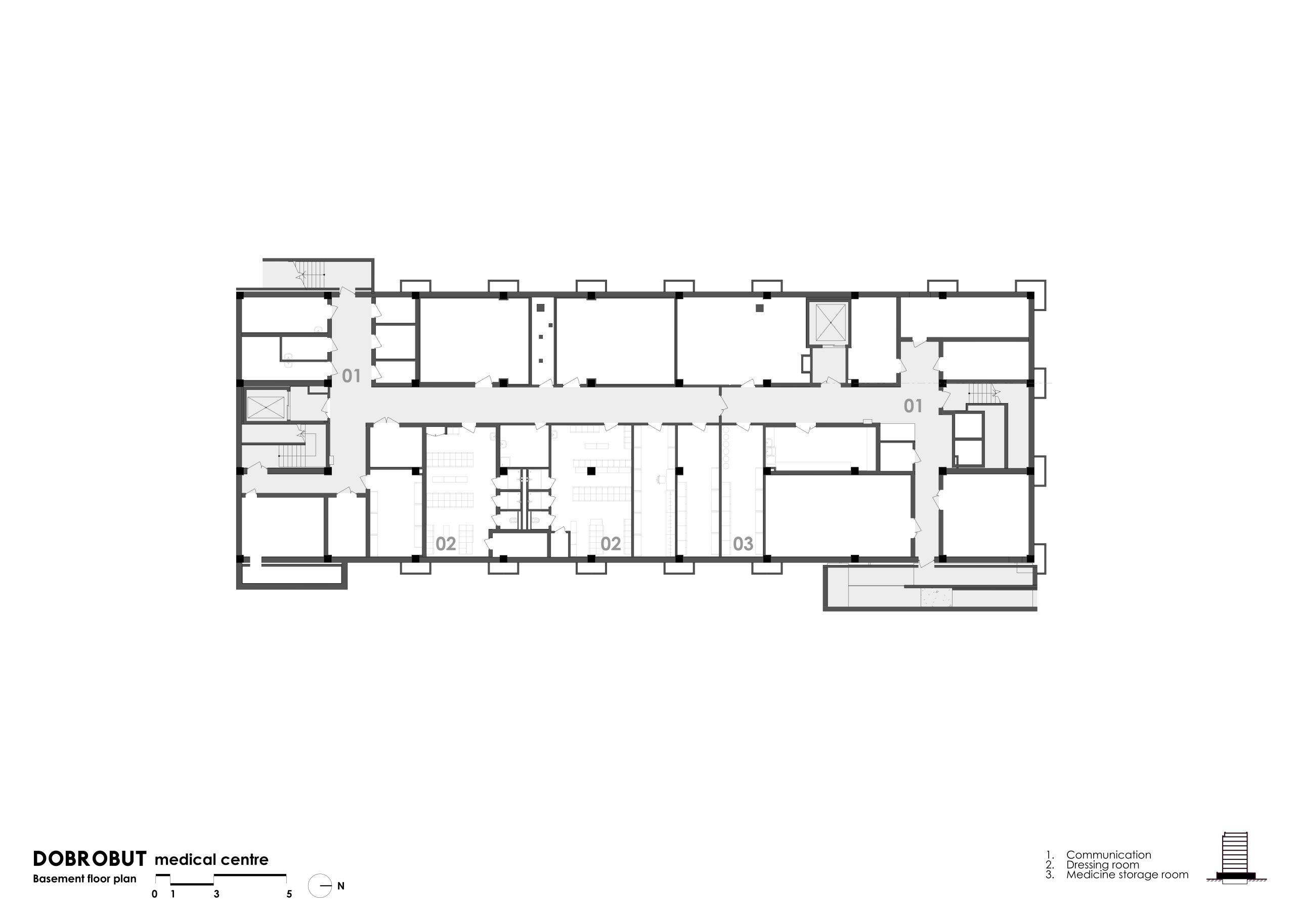
Планувальне рішення:
ГЕНЕРАЛЬНА КОМАНДА ПРОЄКТУВАННЯ
Команда проєкту:

 

 

Архітектори:
5
Менеджер Проєкту:
1
Конструктор:
3
Інженери:
20
Архітектори Інтер’єрів:
3
Архітектор-Візуалізатор:
2
Схеми
Планувальне рішення: